For rent – a freshly renovated 2-room apartment on Gaujas Street 32, located in a quiet and green area next to Mežaparks.
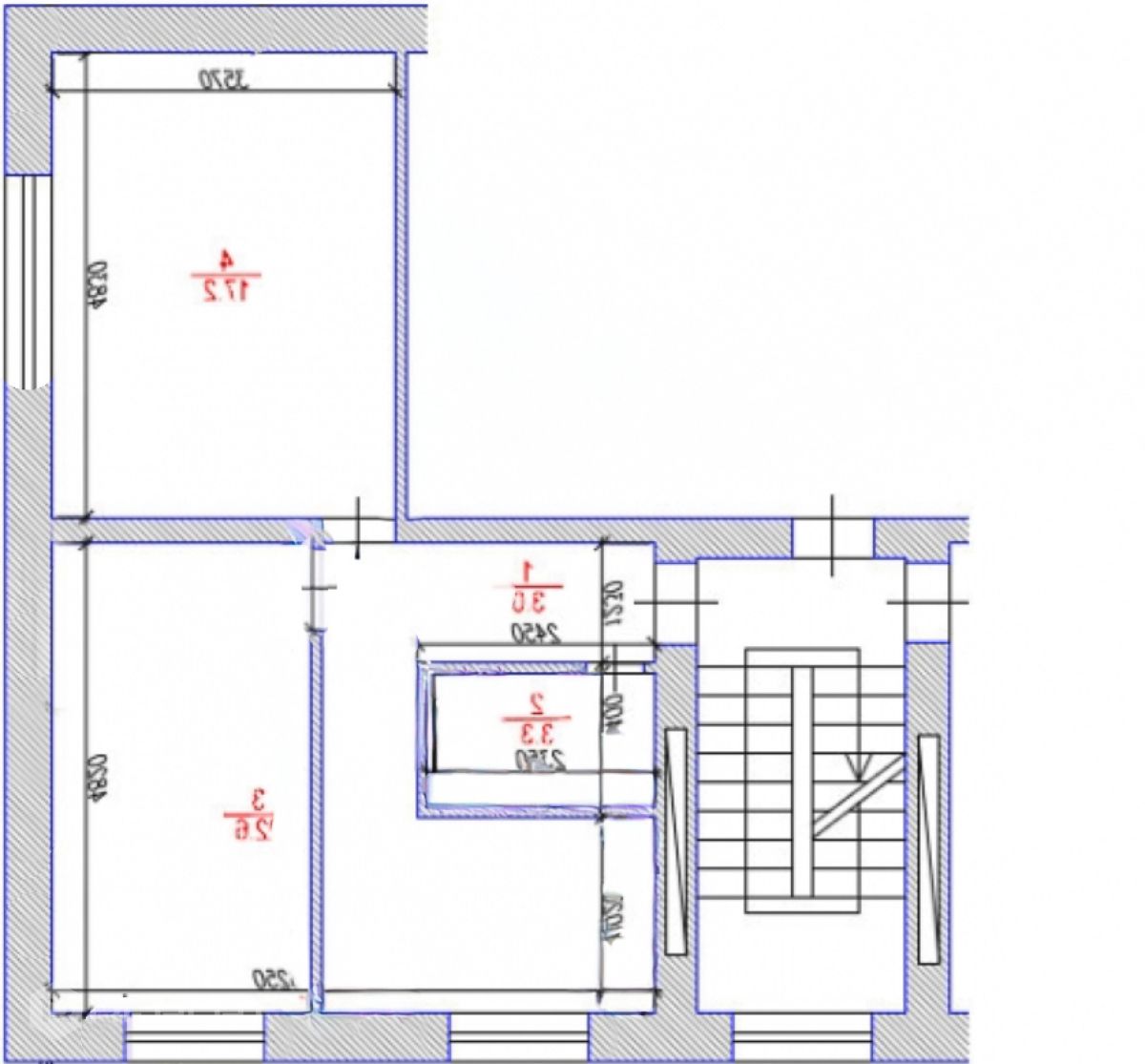
Total area – 47 m².
Both rooms are fully separate, and there is a balcony – a great option for a single tenant, a couple, or even a family who values a peaceful and high-quality living environment.
The apartment has just undergone a full renovation – everything is brand new. A modern kitchen is equipped with an induction stove, oven, refrigerator, and washing machine. All pipes, electrical wiring, windows, and doors have been replaced. The interior is bright, cozy, and thoughtfully designed.
The staircase is secured with a code lock.
Additional conveniences include on-street parking right by the house. Within walking distance is Mežaparks – an ideal place for walks, sports, and outdoor relaxation. In summer, a swimming area is also nearby.
Close to supermarkets such as Rimi, Lidl, and Maxima, as well as pharmacies, cafes, schools, and kindergartens. Excellent public transport connections – tram and bus stops are just a short walk away.
A perfect choice for those seeking a new, cozy, and high-quality home in a peaceful, green neighborhood.
If you like the apartment – come take a look, we can always agree on the details to make it a great deal for both sides.
Call to arrange a viewing.





+371 67210010 























2 rm.
2 fl.
47.00 m2

