Pārdod namīpašumu Rīgas centrā
Piedāvājumā vēsturiska mūra ēka (fasādes māja), celta 1900. gadā, kas atrodas uz zemes gabala ar kadastra Nr. 01000390096 (kopējā platība 914 m²). Zemes gabalā atrodas 3 daudzdzīvokļu ēkas, taču pārdošanā ir tikai fasādes ēka ar atbilstošām domājamām daļām no zemes.
Ēkas raksturojums:
Kopā 18 dzīvokļi (daļa labā stāvoklī, daļa remontējami).
Visi dzīvokļi atbrīvoti.
Māja aprīkota ar pilsētas komunikācijām: ūdens, kanalizācija, elektrība.
Gāzes pieslēgums katrā dzīvoklī, vienā dzīvoklī autonoma gāzes apkure, pārējā – krāsns apkure.
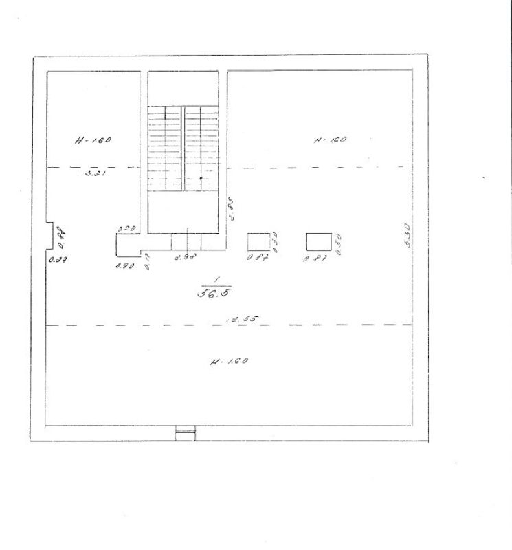
Pagrabstāvs – 113 m².
Bēniņu platība – 86,2 m² (iespēja papildu izbūvei).
Dzīvokļu eksplikācija:
1. stāvs: 2 dzīvokļi – 38,5 m²; 27,6 m²
2. stāvs: 4 dzīvokļi – 29,2 m²; 39,4 m²; 25,0 m²; 14,5 m²
3. stāvs: 4 dzīvokļi – 29,4 m²; 40,7 m²; 26,2 m²; 14,5 m²
4. stāvs: 4 dzīvokļi – 29,3 m²; 40,3 m²; 17,3 m²; 26,2 m²
5. stāvs: 4 dzīvokļi – 30,7 m²; 42,0 m²; 26,4 m²; 14,9 m²
Kopējā platība:
Dzīvokļi: ~480 m²
Pagrabs: 113 m²
Bēniņi: 86,2 m²
Atrašanās vieta un infrastruktūra:
Mājai pretī atrodas Visu Svēto baznīca, tuvumā – parks.
Blakus sabiedriskais transports, skolas, bērnudārzi, veikali.
Rajons strauji attīstās un tiek labiekārtots.
Priekšrocības investoriem:
Īpašums ar lielisku attīstības potenciālu.
Iespēja renovēt un pārdot dzīvokļus individuāli vai izmantot kā īres namu.
Bēniņu potenciāls papildu dzīvokļu izbūvei.
Zvaniet, lai saņemtu vairāk informācijas un vienotos par apskati.





+371 67210010 























18 ist.
5 st.
711.00 m2
400 m2

