Реставрируемое здание на улице Дзирнаву построенно по проекту известного латвийского архитектора Эдмунда фон Трoмповского (Edmund von Trompowsky) в начале 1900 года.
Этот комплекс зданий с двумя внутренними двориками входит в культурное и архитектурное наследие Риги.
Огромное преимущество — это местоположение здания, которое находится в престижном тихом центре Риги, в 5 минутах ходьбы от Старого города, городских парков и скверов.
Несмотря на центральное положение, здание расположено на тихой улице, по которой не проходит транспортный поток.
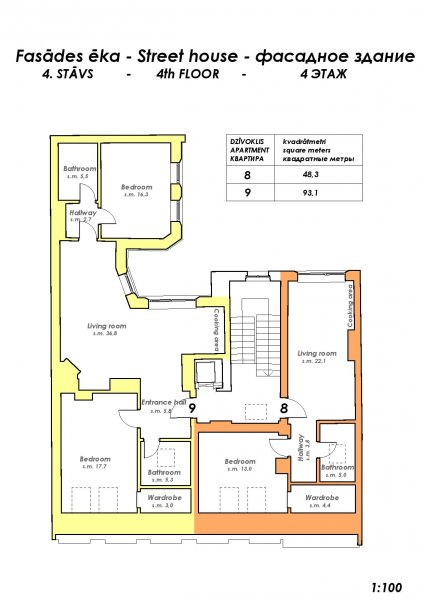
В фасадном здании, выходящем на улицу Дзирнаву находятся 9 квартир различной площади: 35, 7м2 самая маленькая и 101,5м2 самая большая с количеством комнат от 2 до 4.
В фасадном здании также имеются коммерческие помещения площадью 115м2 для бара, ресторана или офиса.
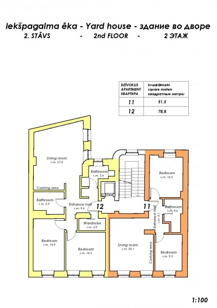
В здании, расположенном во дворе коплекса также имеются 9 квартир площадью от 51м2 до 80м2, а также 9 подвальных помещений для хранения и закрытый гараж площадью 22м2.
В обоих зданиях имеют Лифт, а также на последнем этаже расположены красивые квартиры мансардного типа. Апартаменты с 2 и 3 спальнями имеют два санузла с ванной и душем.
Квартиры продаются с полной внутренней отделкой, без мебели. В некоторых апартаментах есть камин.
Во дворе комплекса находятся 5 парковочных мест.





+371 67210010 


























1 к.
1 эт.
115.70 m2