Energoefektīva, augstas kvalitātes dvīņu mājas daļa, kas atrodas priežu ieskautā teritorijā Berģos.
Ēka ir nodota ekspluatācijā.
Māja ir būvēta no gāzbetona blokiem ar dzelzsbetona pārsegumiem.
A + energoefektivitātes klase, kas nodrošina zemas uzturēšanas izmaksas.
Apkuri nodrošina gaiss-ūdens siltumsūknis, abos stāvos ir izbūvētas siltās grīdas.
Centralizēta rekuperācijas sistēma.
Ūdens tiek iegūts no ūdens spices, ir bioloģiskā notekūdeņu attīrīšanas sistēma.
Visa teritorija ir iežogota, piebraucamais ceļš ir bruģēts, pārējā teritorija ir apzaļumota.
Atsevišķi automātiskie ieejas vārti katrai mājas daļai.
Kvalitatīvi apdares materiāli. Kāpnes ar izturīgu metāla karkasu un koka pakāpieniem.
Drīzumā tiks uzstādītas kāpņu margas.
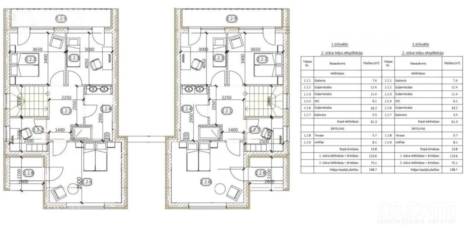
Dzīvojamā platība katrai dvīņu mājas pusei – 135 m².
Plānojums
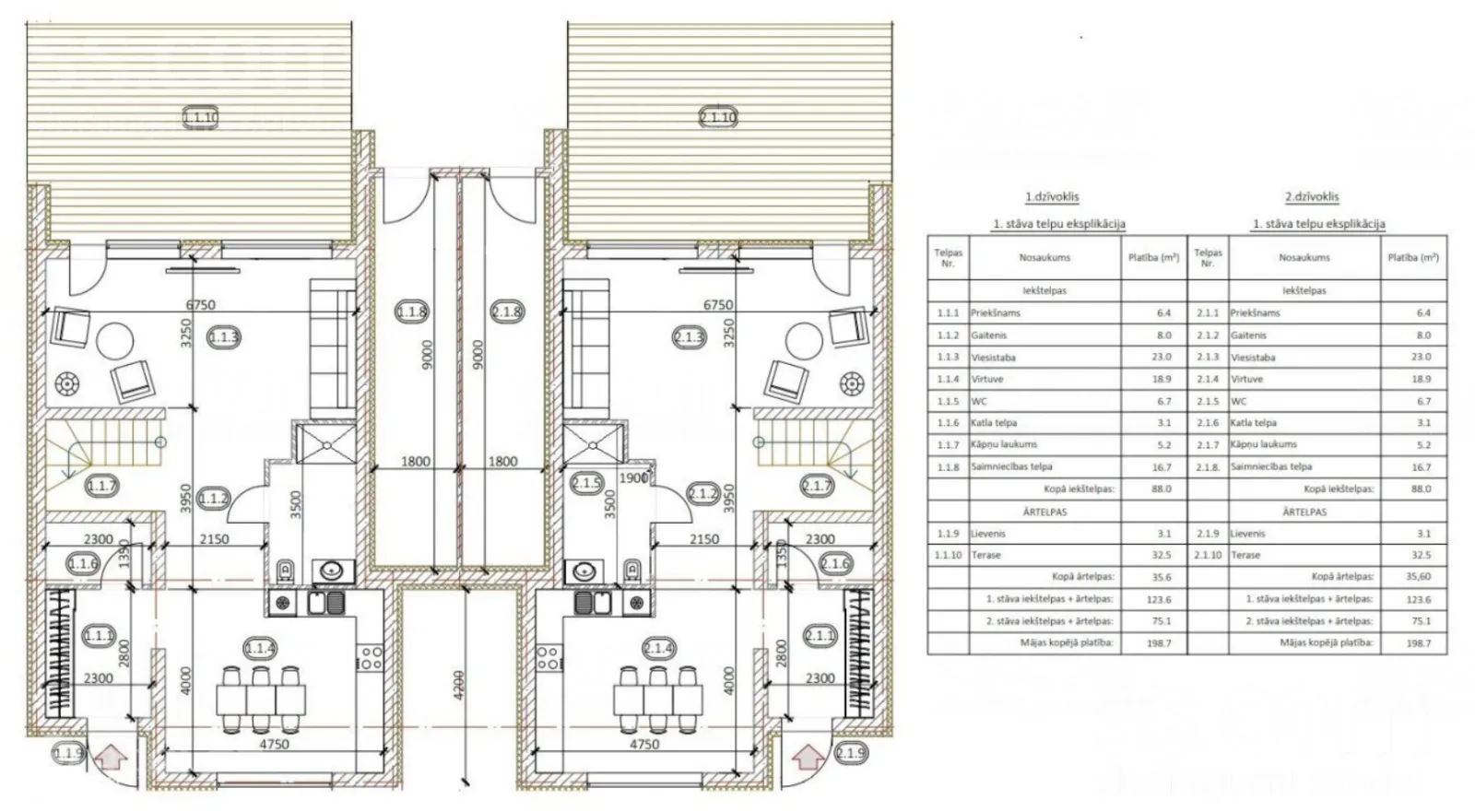
Pirmajā stāvā atrodas priekšnams, virtuve, dzīvojamā istaba, dušas telpa ar tualeti un saimniecības telpa.
Otrajā stāvā atrodas 3 guļamistabas, atsevišķa neliela telpa garderobei vai darba kabinetam, dušas telpa ar tualeti, viens balkons, kuru kopīgi izmanto 2 mazākās guļamistabas, un vēl viens neliels liels balkons, kas pieder galvenajai guļamistabai.
No iekšpagalma ir pieeja noliktavas telpai dvīņu mājas vidusdaļā, kas nodrošina skaņas izolāciju no otras dvīņu mājas daļas.
Visas ciemata priekšrocības un lielpilsētas tuvums vienuviet.
5 min brauciena attālumā atrodas Berģu mūzikas un mākslas pamatskola, veikals un stadions.
6 min brauciena attālumā atrodas Baltezera peldvieta un restorāns „Baltvilla“.
Netālu ir privātas pirmsskolas, bet līdz Langstiņu pašvaldības pirmsskolai „Čiekuriņš“ ir tikai 9 minūšu brauciens.
Tirdzniecības centrs „Akropole Alfa“, „IKEA“ un TC „Sāga“ atrodas 14 minūšu brauciena attālumā.
12 minūšu gājiena attālumā atrodas Rīgas satiksmes 28. maršruta autobusa pietura.
Īpašums atrodas mazstāvu dzīvojamā rajonā, kur nav applūšanas risku, teritorija ir sausa. Klusa, patīkama apkārtne.
Ir pieejams īpašuma video, kurš tiks nosūtīts interesentiem.





+371 67210010 























5 ist.
198.70 m2
603 m2

