Izvēlies majokli pie Juglas ezara ar divi, trīs un četristabu dzīvokļu piedavājumiem platībā no 44–102 m2.
“Ezerjuglas” dzīvojamo kompleksu plānots nodot ekspluatācijā 2022. gada aprīlī.
Ezerjuglas komplekss robežojas ar plašu Juglas ezera piekrasti, kur 2500 m2 platībā plānots ierīkot labiekārtotu pludmali ar pārģērbšanās kabīnēm.
Lieliska satiksme, ērta infrastruktūra un tikai pusstunda līdz pilsētas centram, bet ēku pirmajos stāvos iedzīvotāju ērtībām – nelielas komercplatības pakalpojumiem un tirdzniecībai.
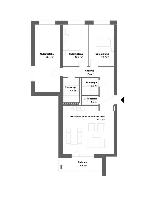
Ezerjugla ir astoņas četrstāvu ēkas labiekārtotā, drošā teritorijā. Te pieejami divistabu un trīsistabu dzīvokļi, vairums – ar plašiem balkoniem. Jūsu automašīna pēc ceļojuma atpūtīsies kādā no 535 virszemes vai pazemes autostāvvietām.
Dzīvokļi Ezerjuglā tiek piedāvāti ar pilnu apdari, lai iemītnieki varētu bez rūpēm iekārtoties jaunajā mājvietā. Visos dzīvokļos iebūvēti trīs stiklu pakešu logi un 13,3 mm biezs trīs slāņu parkets ar 2,7 mm virsējo slāni – pusmatētu ozolu Balticwood Oak Cottage. Visas durvis ir balti krāsotas, savukārt ārdurvis – finierētas. Vannistabas aprīkotas ar Gustavsberg santehniku, Salsa Biston vannām ar priekšējo paneli, kā arī austriešu zīmola Eisl ūdens krāniem un dušām. Sienu un apsildāmo grīdu noformējumu caurvij itāļu elegance ar Itālijā ražotām flīzēm Idea ceramica gaišos, vieglos toņos. Dzīvokļos, kur paredzēti divi sanitārie mezgli, aprīkots viens no tiem, otrs izbūvēts kā garderobe ar ūdens un kanalizācijas ievadiem.
Sportiska dzīvesveida cienītājus gaida vairāk nekā 600 m2 plaša aktīvā sporta zona ar āra trenažieriem, skriešanas celiņiem un konstrukciju skrituļdēļu piekritējiem.
Un sava stāvvieta – arī pašiem mazākajiem: vairākās sekcijās pie kāpņu telpām pirmajā stāvā paredzētas ratiņu novietnes.





+371 67210010 























4 ist.
3 st.
102.00 m2

