Restaurējamā ēka uz Dzirnavu ielas celta pēc latviešu arhitekta Edmunda fon Trompovska projekta 1900. gada sākumā.
Šī kompleksā ēka ietilpst Rīgas kultūras vēsturiskajā mantojumā.
Liela priekšrocība – ēkas atrašanās vieta, kura atrodas netālu no Rīgas klusā centra un 5 minūšu gājienā līdz Vecrīgai, pilsētas parkiem un skvēriem.
Neskatoties uz centrālo izvietojumu, ēka izvietota uz klusas ielas, kurā nav dzīvā satiksmes plūsma.
Fasādes ēkā, kura iziet uz ielas pusi, atrodas 9 dzīvokļi ar platību: 37,7m2, kas ir pati nelielākā un 101,5m2 pati lielākā ar istabu skaitu no 2 līdz 4.
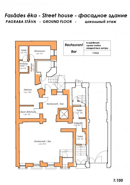
Fasādes mājā ir izvietotas telpas arī komercdarbība ar platību 115m2 – restorānam vai ofisam.
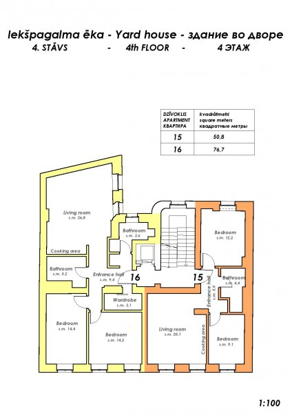
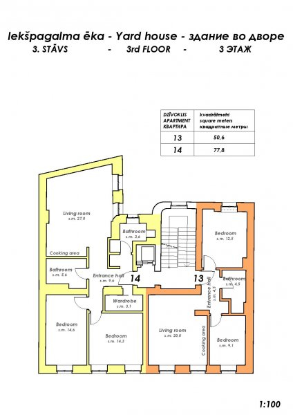
Ēkā, kura izvietota pagalmā arī izvietoti 9 dzīvokļi ar platību no 51m2 līdz 80m2, kā arī pagrabā atrodas glabātuves, ēkā ir arī viena slēgtā garāža ar 22m2 platību. Dzīvokļiem ir racionāli, pārdomāti plānojumi ar studio tipa viesistabām.
Abās ēkās ir lifts un pēdējos stāvos ir izbūvēti skaisti mansarda tipa dzīvokļi. 3 un 4 istabu dzīvokļiem ir divi sanitārie mezgli kuros ir vanna un duša.
Dzīvokļi pārdodas ar pilnu iekšējo apdari (kapitālais remonts), bez mēbelēm. Dažos dzīvokļos ir saglabātas podiņkrāsnis/kamīns.
Pagalmā atrodas 5 parkošanās vietas.





+371 67210010 


























1 ist.
1 st.
115.70 m2