Dzīvokļu apkure tiek veikta uz dzīvoklī esošā gaiss-ūdens siltumsūkņa bāzes, siltumnesējs ir ūdens grīdas apsilde.
Ventilācija risināta ar keramisko siltuma rekuperācijas ventilācijas iekārtu.
Ēkas iekšienē tiek veikta elektrības kabeļu montaža, slēdžu un kontaktdakšu uzstādīšana pēc dzīvokļa plāna (precizējams projektēšanas procesā). Dzīvoklī uzstādīts attālināti nolasāms elektrības skaitītājs, kas atrodas ēkas galvenajā elektības sadale.
Iekšējās apdares paketes ietvaros vannas istabā, tualetēs un gaitenī tiks uzstādīts LED apgaismojums (iebūvejami piekārtos griestos). Citās telpās, apgaismojuma ierīkošanai nepieciešamie elektrības kabeļi būs monteti uz tām paredzētajām vietām un tur nekādas gaismekli netiks uzstādītas.
Dzīvojamo istabu sienas un griesti tiek krāsoti, grīdu apdarē izmantots finierēts parkets.
Vannas istabas sienas un grīdas ir klātas ar 60 x 60 cm keramikas flīzēm. 1.stāva WC grīda tiks klāta ar keramikas flīzēm, sienas klātas ar keramikas flīzēm vai krāsotas pēc arhitektūras projekta. Vannas istabās slīpums uz grīdas noteci nav nodrošināts; slīpums ir izveidots tikai dušas stūrī.





+371 67210010 























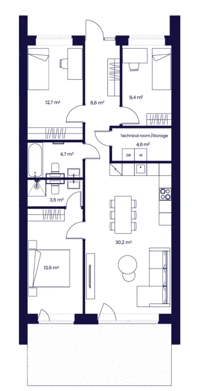
4 ist.
1 st.
107.60 m2
209 m2

